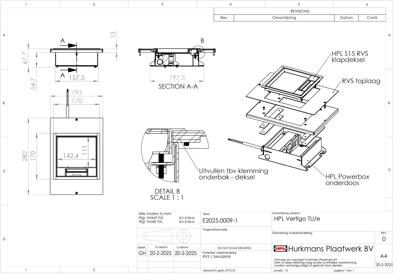
Renovatie vloercontactdozen TU Eindhoven – Vertigo
Voor gebouw Vertigo van de Technische Universiteit Eindhoven ontwikkelde HPL een renovatieoplossing voor bestaande vloercontactdozen. De installaties moesten worden vervangen zonder sloopwerk en zonder onderbreking van het onderwijs. Met de stalen renovatiesets zijn de vloerdozen snel en veilig vervangen, terwijl het gebouw volledig operationeel is gebleven.
